










Lihat Semua
Gudang
Sewa JL CARGO TAMAN 1
Rp 600 JT
SEWA GUDANG DENPASAR 780 M² DI JL CARGO, SIAP OPERASI
Detail Properti
Transaksi
Sewa
Kamar Tidur
-
Kamar Mandi
-
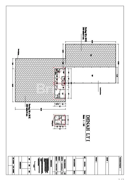
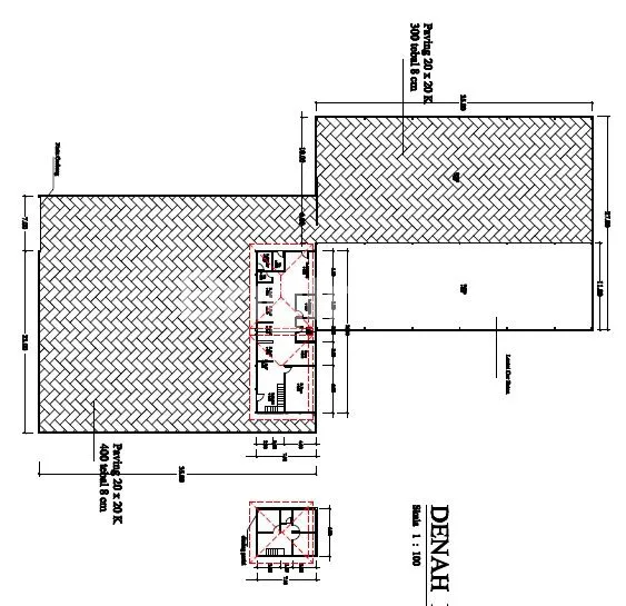
Luas Tanah
780 m2
Luas Bangunan
504 m2
Tipe Properti
Gudang
Alamat
JL CARGO TAMAN 1
Lokasi
Bali, Denpasar, Denpasar Utara
Listrik
7700 Watt
Sertifikat
SHM
Hadap
Selatan
Group
Secondary
Furnish
-
Terdaftar Pada
31 Desember 2025
ID Listing
282225-WNCG00001
Keterangan
📌 DISEWAKAN – GUDANG BARU di Jl. Cargo -Denpasar Utara
Lokasi strategis kawasan pergudangan & distribusi – akses mudah ke bandara, kota, dan jalur logistik utama.
🏢 Spesifikasi Properti
🔹 Luas Tanah: 780 m²
🔹 Luas Bangunan Gudang: 504 m²
🔹 Luas Kantor: 26,5 m²
🔹 Kamar Mandi: 2 unit
🔹 Luas Area Parkir: 195 m² (luas & nyaman untuk bongkar muat)
🔹 Arah Bangunan: Hadap Selatan
🔹 IMB Gudang (legalitas lengkap)
🚛 Akses & Fasilitas Logistik
🔹 Lebar Pintu Gerbang 9 m — Kontainer bisa masuk
🔹 Cocok untuk truk besar / aktivitas loading & unloading
🔹 Listrik 7.700 watt
🔹 Air sumur bor
💼 Kelebihan / Selling Point
✔ Gudang baru — struktur baja kuat, siap pakai
✔ Jalan lebar, mudah akses kendaraan besar
✔ Cocok untuk distribusi, penyimpanan barang, logistik, e-commerce, workshop produksi, ekspedisi, supplier material, dll.
✔ Lingkungan sekitarnya banyak kawasan gudang & industri ringan
💰 600 Juta /th
minim 3 th
PPh oleh owner
PBB dan notaris oleh penyewa
Lokasi strategis kawasan pergudangan & distribusi – akses mudah ke bandara, kota, dan jalur logistik utama.
🏢 Spesifikasi Properti
🔹 Luas Tanah: 780 m²
🔹 Luas Bangunan Gudang: 504 m²
🔹 Luas Kantor: 26,5 m²
🔹 Kamar Mandi: 2 unit
🔹 Luas Area Parkir: 195 m² (luas & nyaman untuk bongkar muat)
🔹 Arah Bangunan: Hadap Selatan
🔹 IMB Gudang (legalitas lengkap)
🚛 Akses & Fasilitas Logistik
🔹 Lebar Pintu Gerbang 9 m — Kontainer bisa masuk
🔹 Cocok untuk truk besar / aktivitas loading & unloading
🔹 Listrik 7.700 watt
🔹 Air sumur bor
💼 Kelebihan / Selling Point
✔ Gudang baru — struktur baja kuat, siap pakai
✔ Jalan lebar, mudah akses kendaraan besar
✔ Cocok untuk distribusi, penyimpanan barang, logistik, e-commerce, workshop produksi, ekspedisi, supplier material, dll.
✔ Lingkungan sekitarnya banyak kawasan gudang & industri ringan
💰 600 Juta /th
minim 3 th
PPh oleh owner
PBB dan notaris oleh penyewa
Simulasi Cicilan KPR
Harga Properti (Rp)
Rp 600 JT
Uang Muka (Rp)
Jangka Waktu
Suku Bunga
Jumlah Angsuran
Rp 3.795.809 per bulan
Dengan klik tombol kontak, Pengguna setuju dengan Syarat Pengguna dan Kebijakan Privasi

















































































