










Lihat Semua
Ruko
Jual/Sewa SLAWI, TEGAL
Rp 795 JTRp 50 JT
TURUN HARGA DARI 1,25 M MENJADI 795 JUTA RUKO DI SLAWI, TEGAL
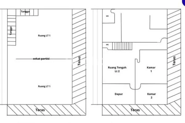
Detail Properti
Transaksi
Jual Sewa
Kamar Tidur
2
Kamar Mandi
2
Luas Tanah
72 m2
Luas Bangunan
144 m2
Tipe Properti
Ruko
Alamat
SLAWI, TEGAL
Lokasi
Jawa Tengah, Tegal, Siawi
Listrik
3500 Watt
Sertifikat
HGB
Hadap
Selatan
Group
Secondary
Furnish
Non-furnished
Ada Garasi
Ya
Terdaftar Pada
06 Februari 2026
ID Listing
060426-UNSR00011
Keterangan
* Ruko 2 lt mo
* Terletak di pusat pertokoan
* Dekat Swalayan
* Dekat Stasiun Kereta Api
* 5 menit ke pom bensin
* 5 menit ke POLRES
* 5 menit ke Rumah Sakit
* Cocok untuk usaha barang maupun jasa
* Terletak di pusat pertokoan
* Dekat Swalayan
* Dekat Stasiun Kereta Api
* 5 menit ke pom bensin
* 5 menit ke POLRES
* 5 menit ke Rumah Sakit
* Cocok untuk usaha barang maupun jasa
Simulasi Cicilan KPR
Harga Properti (Rp)
Rp 795 JT
Uang Muka (Rp)
Jangka Waktu
Suku Bunga
Jumlah Angsuran
Rp 5.029.447 per bulan
Dengan klik tombol kontak, Pengguna setuju dengan Syarat Pengguna dan Kebijakan Privasi








