










Lihat Semua
Villa
Jual/Sewa JL MERTANADI
Rp 8 MRp 450 JT
VILLA MODERN DENGAN KOLAM RENANG PRIBADI – NYAMAN & SIAP HUNI!
Detail Properti
Transaksi
Jual Sewa
Kamar Tidur
3
Kamar Mandi
1
Luas Tanah
217 m2
Luas Bangunan
200 m2
Tipe Properti
Villa
Alamat
JL MERTANADI
Lokasi
Bali, Badung, Kerobokan Kelod
Listrik
5500 Watt
Sertifikat
SHM
Hadap
Utara
Group
Secondary
Furnish
Fully-furnished
Ada Garasi
Ya
Terdaftar Pada
09 September 2025
ID Listing
091825-BRSE00017
Keterangan
Dapatkan pengalaman hunian eksklusif di villa modern ini, dengan desain elegan dan fasilitas lengkap yang siap memenuhi kebutuhan Anda!
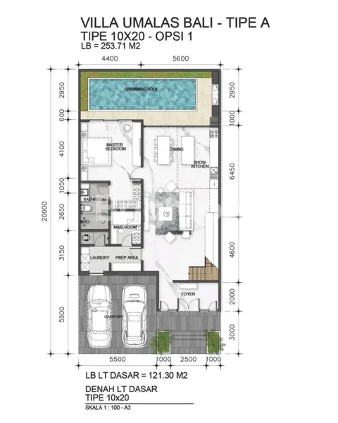
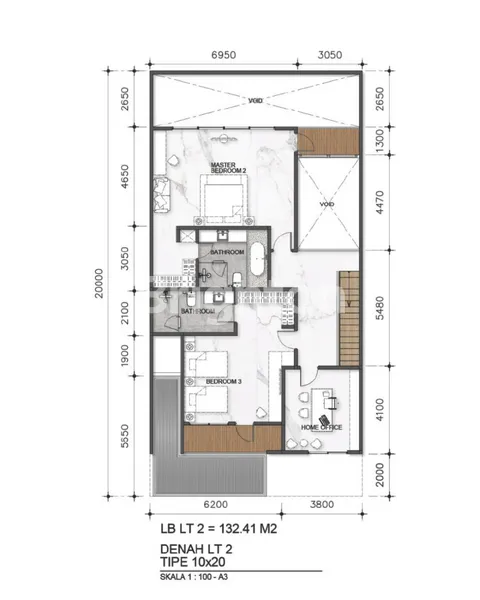
Dibangun di atas lahan seluas 217 m² dengan luas bangunan 200 m², villa ini menawarkan 3 kamar tidur dengan kamar mandi ensuite, memberikan kenyamanan maksimal bagi setiap penghuni. Area living room yang luas menyatu dengan pantry modern, menciptakan suasana hangat dan fungsional. Selain itu, tersedia 1 guest toilet dan 1 powder room untuk menunjang kenyamanan tamu.
Nikmati kesejukan kolam renang pribadi (3m x 5m) yang menjadi pusat relaksasi di rumah ini. Carport luas juga tersedia untuk kendaraan Anda. Didukung dengan listrik 5.500 kWh dan IMB lengkap
Dibangun di atas lahan seluas 217 m² dengan luas bangunan 200 m², villa ini menawarkan 3 kamar tidur dengan kamar mandi ensuite, memberikan kenyamanan maksimal bagi setiap penghuni. Area living room yang luas menyatu dengan pantry modern, menciptakan suasana hangat dan fungsional. Selain itu, tersedia 1 guest toilet dan 1 powder room untuk menunjang kenyamanan tamu.
Nikmati kesejukan kolam renang pribadi (3m x 5m) yang menjadi pusat relaksasi di rumah ini. Carport luas juga tersedia untuk kendaraan Anda. Didukung dengan listrik 5.500 kWh dan IMB lengkap
Simulasi Cicilan KPR
Harga Properti (Rp)
Rp 8 M
Uang Muka (Rp)
Jangka Waktu
Suku Bunga
Jumlah Angsuran
Rp 50.610.792 per bulan
Dengan klik tombol kontak, Pengguna setuju dengan Syarat Pengguna dan Kebijakan Privasi








































































